Takaisin

Diplomityö

Energiatehokkaan puurankarakenteisen pientalon suunnittelu

Projektityyppi: Asuntosuunnittelu

Vuosi: 2024

Tutkinnon taso: M.Arch

ArchiCAD · Rhino 3D · Grasshopper · Twinmotion · InDesign · Photoshop · Illustrator · OneClick LCA

Diplomityön tavoitteena oli suunnitella energiatehokas ja esteettinen puurankarakenteinen pientalo hyödyntäen energiankulutuksen simulointiohjelmaa Climate Studiota. Työ käsitteli pientalon suunnitteluprosessia ja siihen liittyviä keskeisiä näkökohtia, erityisesti lämmitettävän sisätilan muodon vaikutusta energiankulutukseen ja energiatehokkuuden huomioon ottamista jo suunnitteluvaiheessa.

Tulokset osoittivat, että ulkovaipan pinta-alan kasvu lisäsi energiankulutusta vain marginaalisesti. Esimerkiksi 30 % suurempi ulkovaipan pinta-ala kasvatti energiankulutusta vain 3 %. Rakennuksen suuntaamisella etelään saavutettiin parhaimmillaan 3,3 % energiansäästöt. Ikkunoiden sijoittelu ja koko vaikuttivat merkittävästi energiankulutukseen, ja ikkunoiden strateginen sijoittelu vähensi valaistusenergian tarvetta ja paransi sisätilan lämpömukavuutta.

Simulaatiotulokset

Ulkoseinän pinta-alan vaikutus energiankulutukseen
Rakennuksen orientaation vaikutus energiankulutukseen
Yläpohjan muodon vaikutus energiankulutukseen

Yläpohjan muodolla havaittiin olevan suuri vaikutus energiankulutukseen suhteutettuna tilavuuteen. Tasakatto kulutti enemmän energiaa verrattuna aumakattoon. Räystäiden osalta havaittiin, että räystäätön rakennus kulutti hieman vähemmän energiaa, mutta räystäät paransivat rakennuksen viihtyisyyttä ja suojasivat ulkoseiniä.

Eristemateriaaleista polyuretaanieriste oli energiatehokkain, mutta aiheutti huomattavasti enemmän hiilidioksidipäästöjä valmistusvaiheessa verrattuna ekologisempaan puukuitueristeeseen. Vaikka polyuretaanieriste säästi energiaa käytön aikana, puukuitueriste oli pitkällä aikavälillä ekologisempi vaihtoehto.

Suunnitelmaehdotus

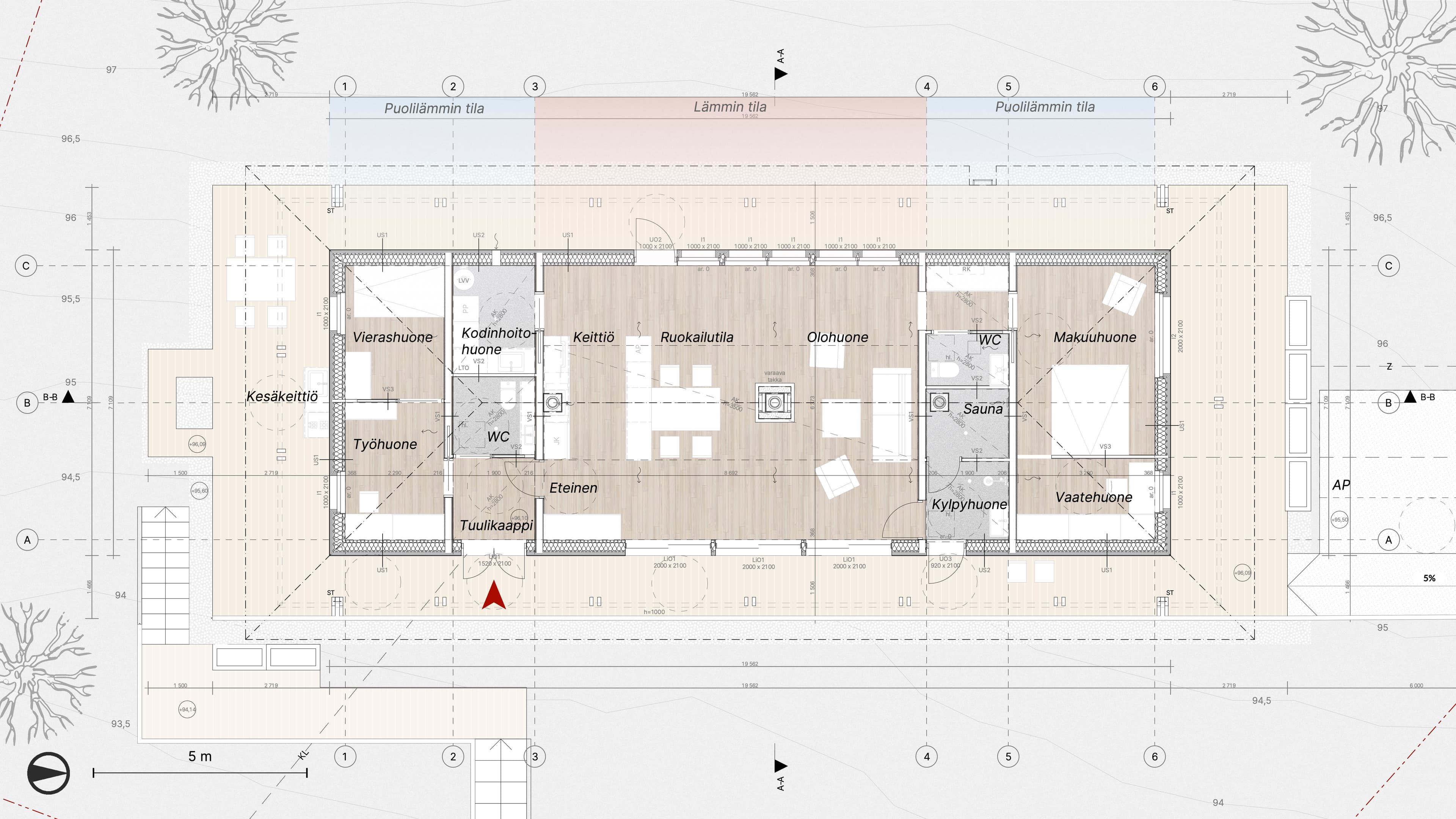
Pohjapiirustus
Julkisivu etelään
Havainnekuva olohuoneesta.
ArchiCADRhino 3DGrasshopperTwinmotionInDesignPhotoshopIllustratorOneClick LCA