Takaisin

No. 14

Projektityyppi: Asuntosuunnittelu

Vuosi: 2022

Tutkinnon taso: B.Arch

ArchiCAD · Rhino 3D · Illustrator · InDesign · Photoshop

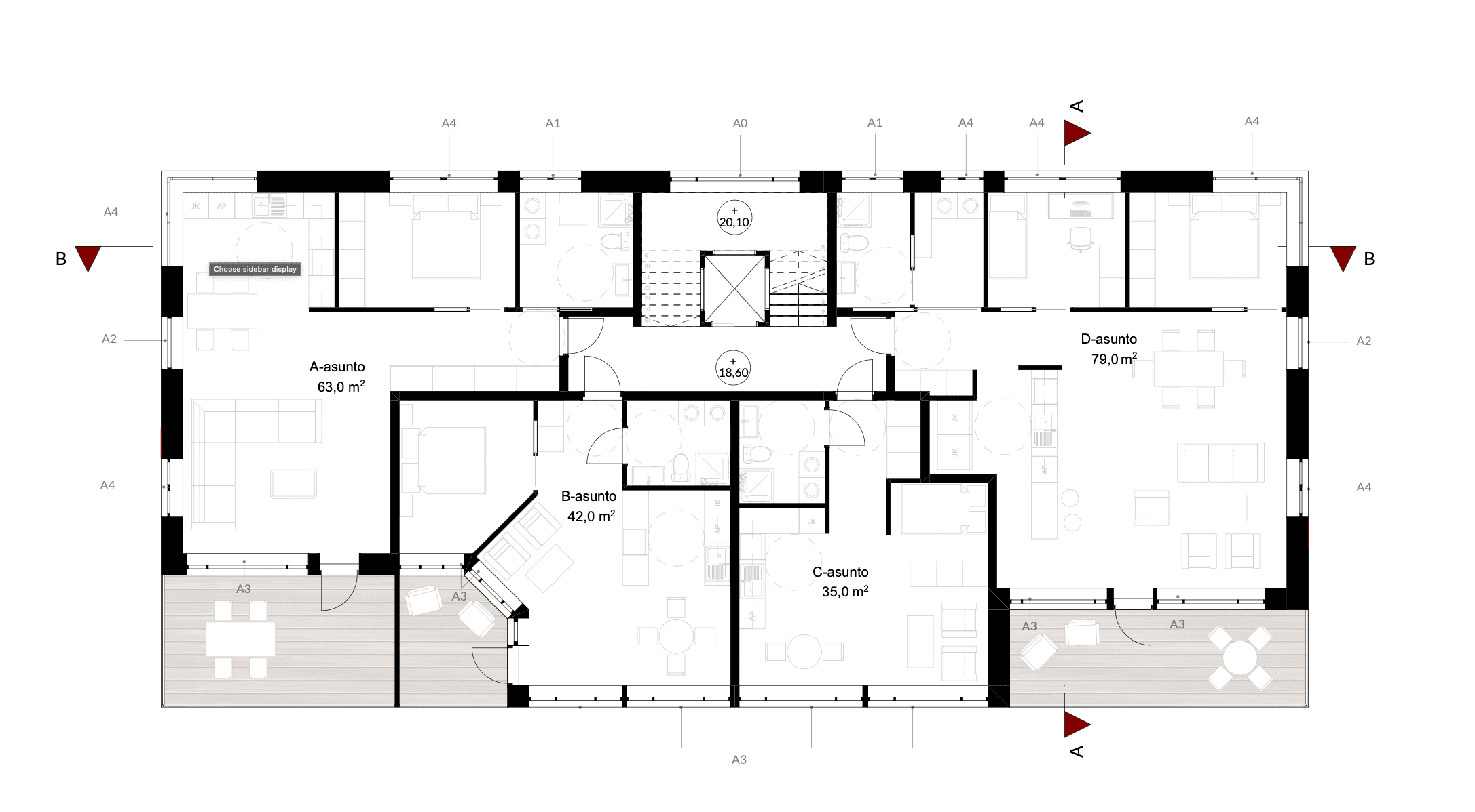
No.14 on Sörnäistenkadun varrella sijaitseva seitsemänkerroksinen asuinrakennus, joka tarjoaa laajat näkymät merelle ottaen samalla huomioon ympäristön. Vaikka rakennuksen ulkomuoto muistuttaa naapurirakennuksia, No.14 erottuu tyylillisesti muista. Punaiset tiiliseinät ja symmetriset aukotukset tuovat rakennukselle oman, tunnistettavan ilmeen.

Suunnitelman inspiraationa ovat toimineet Hong Kongin asuinkerrostalot, joissa asukkaille on usein tarjolla suuria eteishalleja. No.14 pyrkii luomaan vastaavanlaisia tiloja, joissa asukkaat voivat kohdata ja vaihtaa kuulumisia. Tavoitteena on suunnitella mahdollisimman asukasystävällinen ja ekologinen kerrostalo Sörnäistenkadun varteen.

Rakennuksen ulkotilat on jaettu kolmeen piha-alueeseen maaston muodon mukaan. Alimmassa tasossa sijaitsee julkinen terassipiha, keskimmäisessä tasossa on yksityisempi viherpiha, jossa on amfiteatterimainen katsomo, ja ylimmässä tasossa lasten leikkipiha Fenixinrinteen vieressä.

Rakennuksen yhteisiä sisätiloja löytyy sekä maantasosta että ylimmästä kerroksesta. Sörnäistenkadun pääsisäänkäynnin yhteydessä on tilava eteisaula, josta pääsee liiketilaan. Toisessa kerroksessa sijaitsevat kerhotilat ja valoisa talopesula, josta on yhteys viherpihalle. Hissillä pääsee helposti ylimpään kerrokseen, jossa sijaitsevat kaksi talosaunaa ja tilava kasvihuone. Aamusaunassa voi nauttia auringon noususta ja upeasta merinäköalasta, kun taas iltasaunasta avautuu rauhallinen kaupunkinäkymä ja auringonlasku. Kasvihuone toimii näiden tilojen jakajana.

Muuntojoustavuus on otettu suunnittelussa huomioon, ja yhteistiloja voidaan tarvittaessa muuttaa asunnoiksi tai mukauttaa asukkaiden tarpeiden mukaan, esimerkiksi muuttamalla viherhuone joogatilaksi.

ArchiCADRhino 3DIllustratorInDesignPhotoshop