Takaisin

Tiilitalo

Projektityyppi: Asuntosuunnittelu

Vuosi: 2023

Tutkintotaso: M.Arch

ArchiCAD

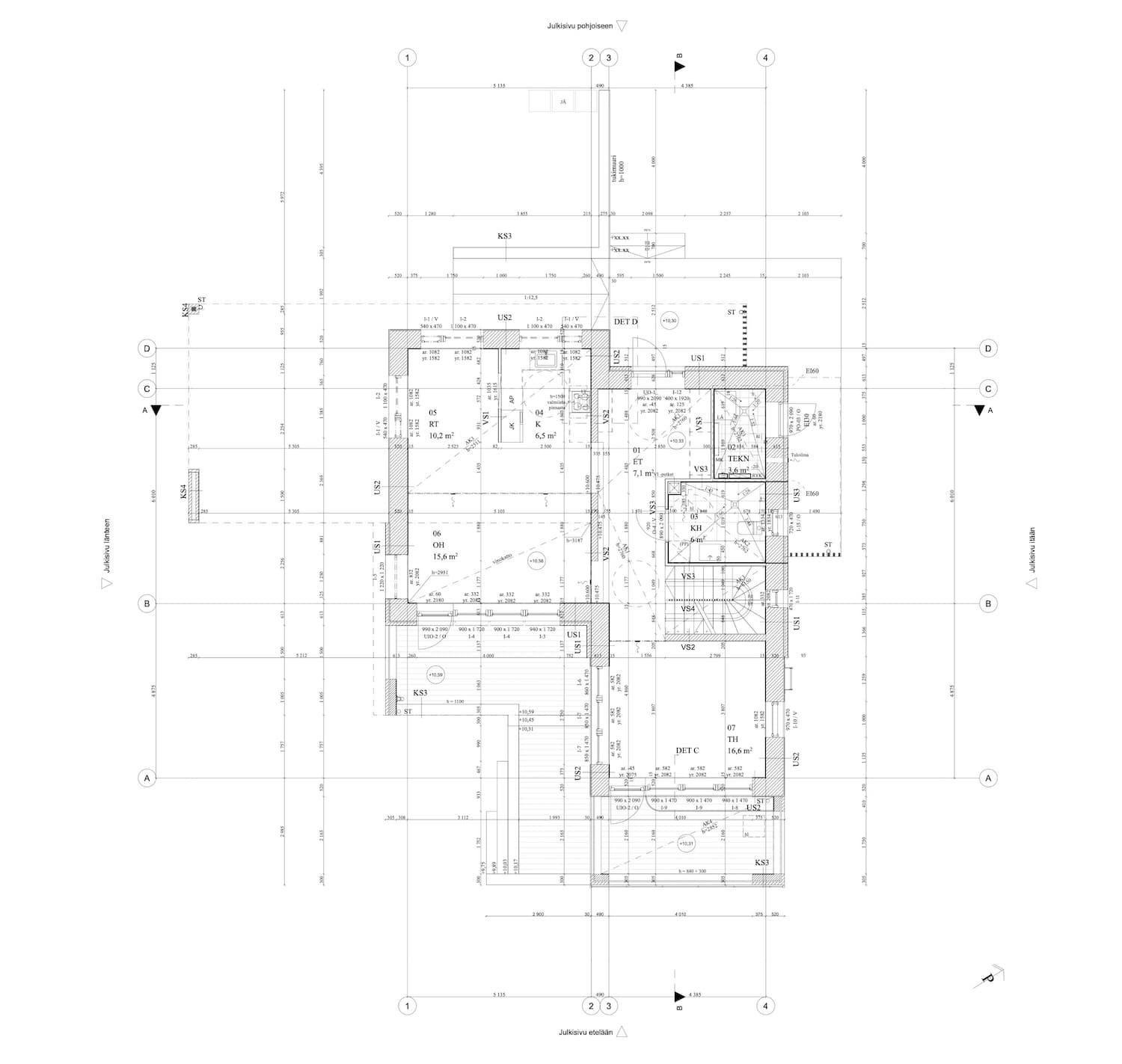
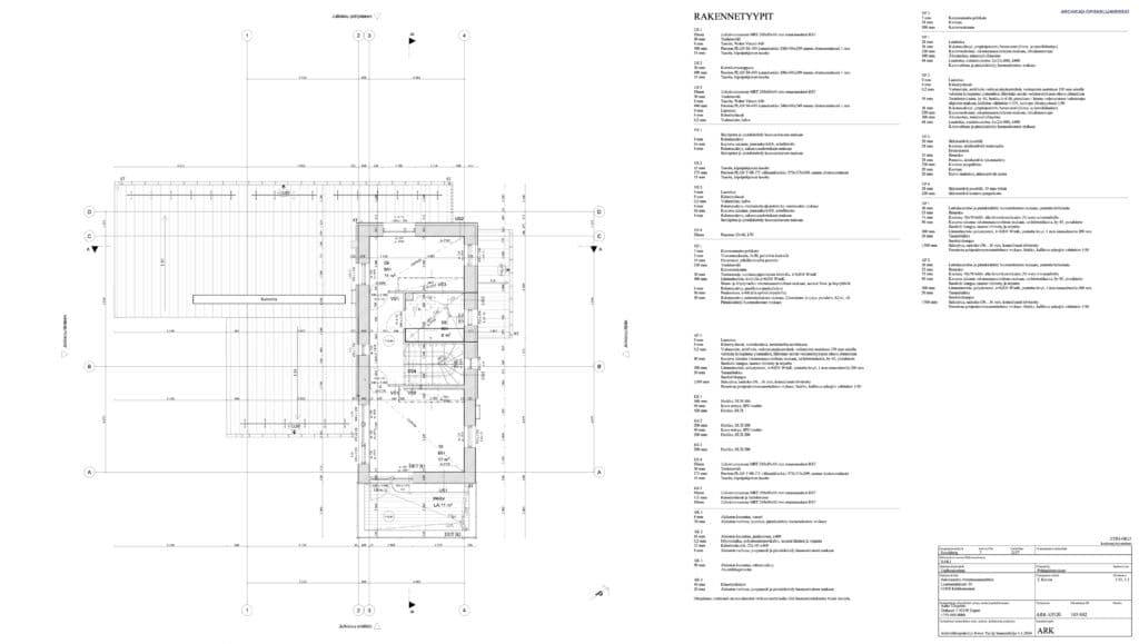
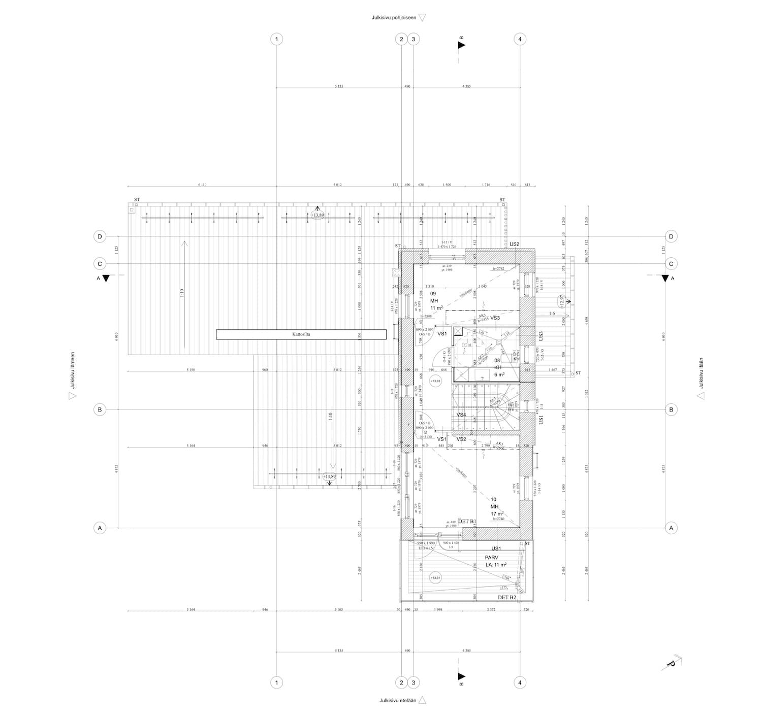
Tiilitalo on rakennussuunnittelun kurssilla toteutettu pientaloprojekti, joka vastaa itsenäisesti suoritettavan, yksityiskohtia painottavan kurssin vaatimuksiin. Projekti keskittyy 134 m² kokoisen, kaksikerroksisen pientalon suunnitteluun. Kurssin tavoitteena oli syventyä detaljisuunnitteluun sekä valmistaa arkkitehdin työelämään ja rakennushankkeiden toteutukseen liittyvien asiakirjojen laadintaan.

Tiilitalo-projekti täyttää kurssin korkeat laatuvaatimukset, ja se osoittaa kypsää suunnitteluosaamista sekä kykyä hallita rakennushankkeen monivaiheista toteutusta. Tämä projekti on toteutettu kurssin puitteissa ennen siirtymistä diplomityöhön.

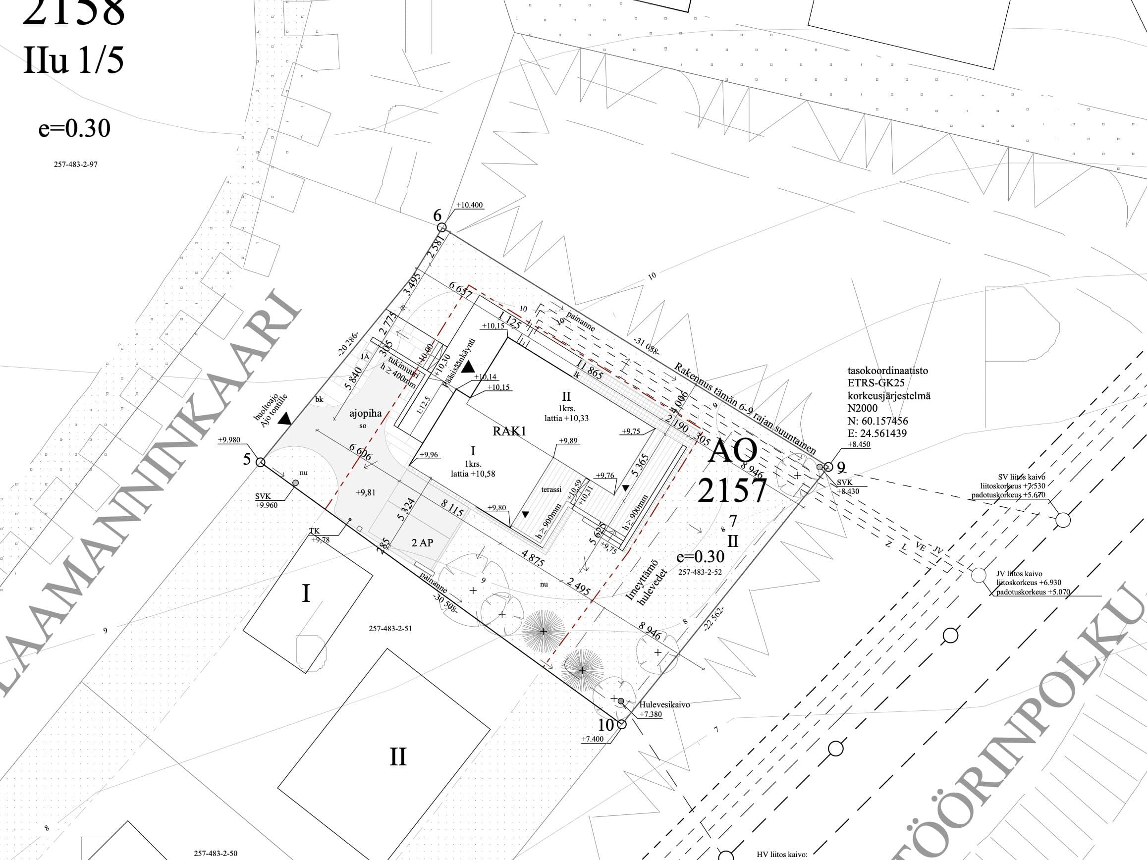
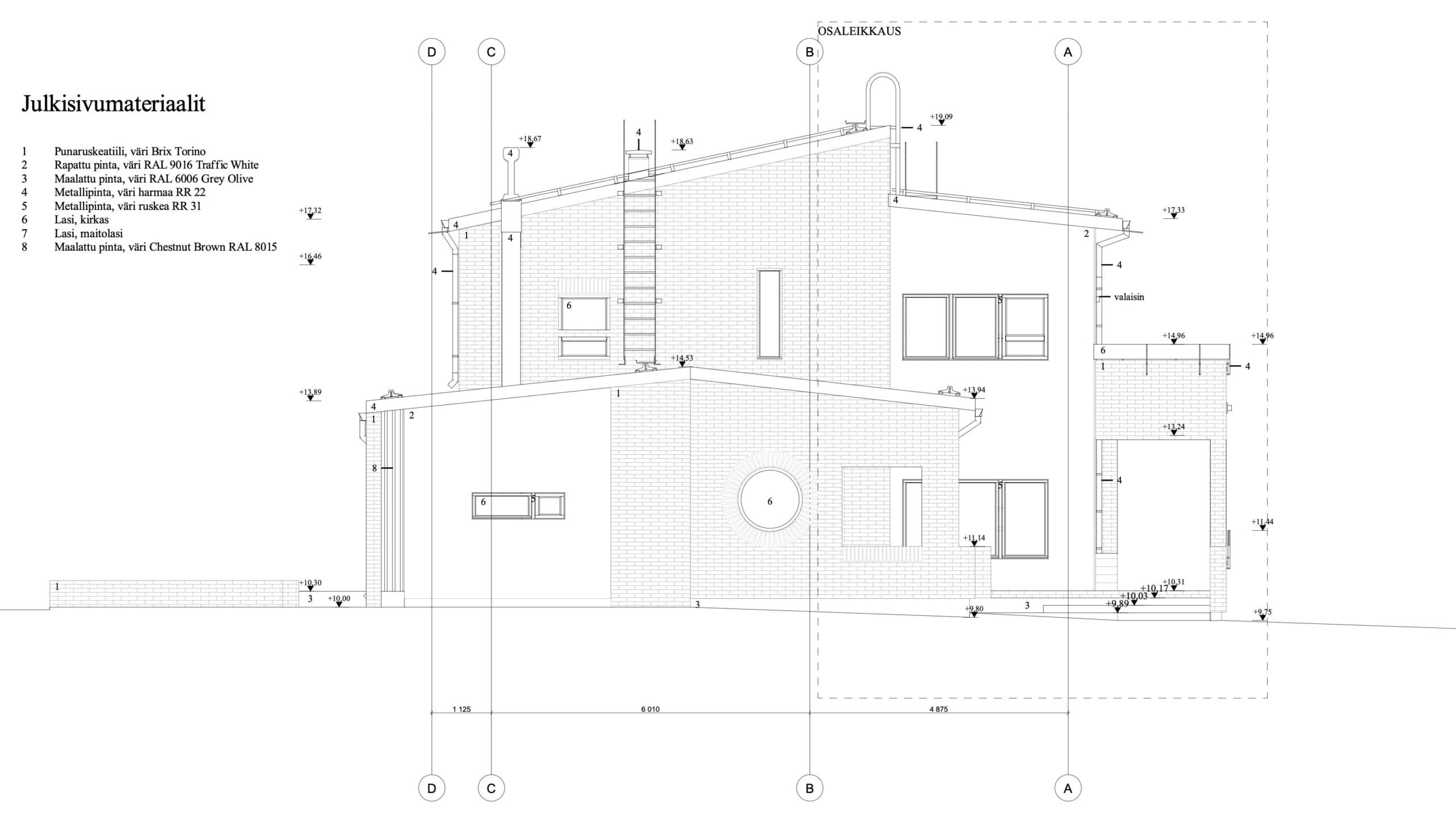
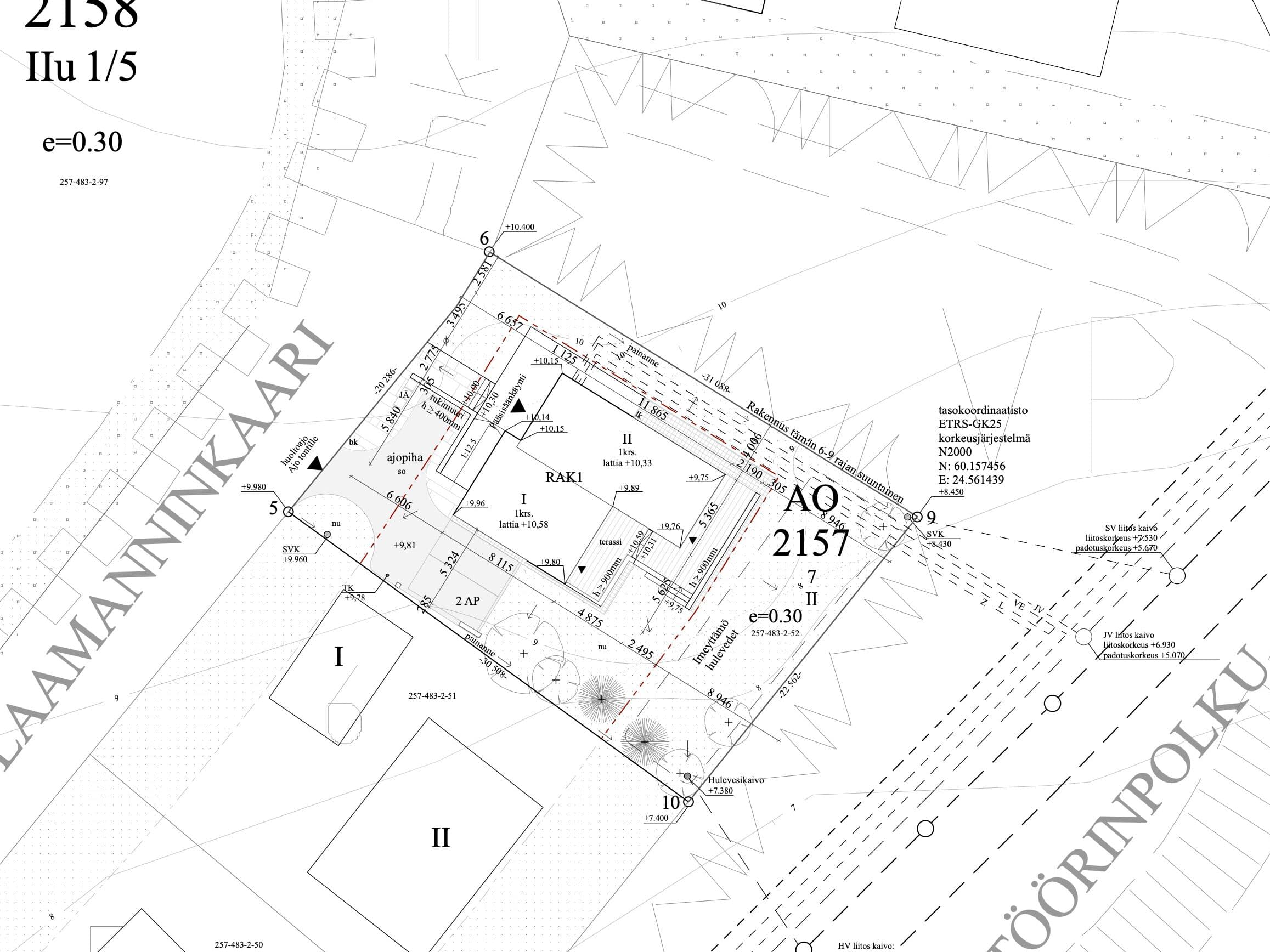
Tiilitalo sijaitsee Sundsbergissä Kirkkonummella. Rakennus on sijoitettu 31 m x 23 m kokoiselle tasaiselle tontille. Talon ulkoalueet suuntaavat kohti etelään. Harjakatto on yhtenäinen muiden asuinrakennuksien kanssa. Omaa rauhaa tontille on tuotu puuistutuksilla. Rakennuksen julkisivumateriaalit ovat vaalealla rapattu pinta ja punatiiliverhous.

ArchiCAD